窝趣公寓 从旧厂房到白领生活社区的公区创新设计与平面布局

首页 > 产品大全 > 窝趣公寓 从旧厂房到白领生活社区的公区创新设计与平面布局

窝趣公寓 从旧厂房到白领生活社区的公区创新设计与平面布局

窝趣公寓 从旧厂房到白领生活社区的公区创新设计与平面布局

在城市更新的浪潮中,老旧工业厂房的改造再利用成为盘活存量空间、赋予城市新活力的重要途径。窝趣公寓敏锐地捕捉到这一趋势,将目光投向那些承载着历史记忆却日渐沉寂的旧厂房,通过精心的设计改造与功能重塑,将其转变为面向都市白领的长租公寓。这一转变的核心,不仅在于居住单元的升级,更在于对公共区域的创新性规划与设计,使之成为连接居住、工作与社交的新型生活枢纽。

一、 设计理念:从“工业遗迹”到“活力社区”

窝趣公寓的改造设计并非简单的空间翻新,而是基于对当代白领生活需求的深刻洞察。设计团队摒弃了将公共区域仅仅视为走廊、门厅等过渡空间的传统思维,转而以“社区营造”为核心理念。目标是将冰冷、空旷的旧厂房结构,转化为温暖、开放且充满互动可能的共享生活场域。设计保留了部分工业元素,如裸露的砖墙、钢架结构或水泥质感,将其与现代设计语言(如简约的线条、明亮的色彩、温暖的木质元素)相结合,形成独特的“工业复古融合”风格,既致敬历史,又契合年轻白领的审美偏好。

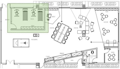
二、 平面布局:功能复合与动线优化

在平面设计上,窝趣公寓的公区布局充分体现了功能复合与效率优先的原则。

  1. 核心枢纽式布局:通常将面积最大、采光最好的区域(如原厂房的空旷中庭或高挑空间)规划为复合功能核心区。这个区域可能集接待、休闲、轻办公、社群活动于一体,成为公寓的“客厅”和活力中心。
  2. 清晰的功能分区:围绕核心区,其他公共功能被科学地分散布置:
  • 工作与学习区:设置相对安静的角落,配备高速网络、电源插座和符合人体工学的桌椅,满足居家办公和阅读需求。
  • 健身与健康区:利用层高或边角空间,配备基础健身器材、瑜伽区,倡导健康生活方式。
  • 社交与娱乐区:配置开放厨房/吧台、游戏区(桌游、台球等)、影音区,鼓励租客之间的交流与放松。
  • 生活服务区:集中设置快递柜、自助洗衣房、共享储物间等,提升生活便利性。
  1. 流畅的动线设计:连接居住单元与各公区的动线清晰明了,避免迂回交叉。通过玻璃隔断、灵活家具组合等方式,在保证各区域功能独立性的基础上,维持视觉上的通透与连贯,营造开放、自由的氛围。

三、 公区创新升级亮点

窝趣公寓在公区设计上的“升级”,体现在多个维度:

  • 场景化设计:不再是千篇一律的摆设,而是根据不同时间段(晨间、午后、夜晚)和不同活动(独处、小聚、派对)的需求,打造可灵活切换使用的场景。例如,白天可作为咖啡馆式的开放办公区,晚上则可转变为小型沙龙或观影场地。
  • 科技智能融入:引入智能门禁、线上预约系统(如预约健身房、活动室)、社区APP互动平台等,让公区的使用和管理更高效、更贴合数字原住民的习惯。
  • 绿色生态引入:利用天窗、绿植墙、室内庭院等设计,将自然光与绿色引入室内,改善旧厂房可能存在的采光与通风问题,提升空间品质与居住者的心理舒适度。
  • 社群运营嵌入:平面设计之初即为未来的社群活动预留了空间和可能性。例如,可移动的讲台、可拼接的桌椅、展示墙等,都是为了方便举办主题分享会、手艺工作坊、节日庆祝等活动,从而激活社区氛围,增强租客归属感。

四、

窝趣公寓通过对旧厂房的创造性改造,特别是在公共区域的平面设计与功能创新上,成功地将一处工业遗存转化为一个能满足白领群体居住、工作、社交、娱乐等多重需求的现代生活社区。其公区不再只是附属空间,而是提升产品竞争力、塑造品牌个性、促进用户粘性的关键载体。这种以用户为中心、强调体验与连接的设计思路,为长租公寓行业的产品升级与差异化发展提供了有价值的参考。它不仅提供了优质的居住空间,更在都市中营造了一种新型的、富有活力的邻里关系与生活方式。

如若转载,请注明出处:http://www.zxgqyf.com/product/19.html

更新时间:2026-05-15 08:59:40